NSBRC - Charles Vickery
National Self Build & Renovation Centre Logo close Menu
Book Free Now

Charles Vickery


Swallowbrook

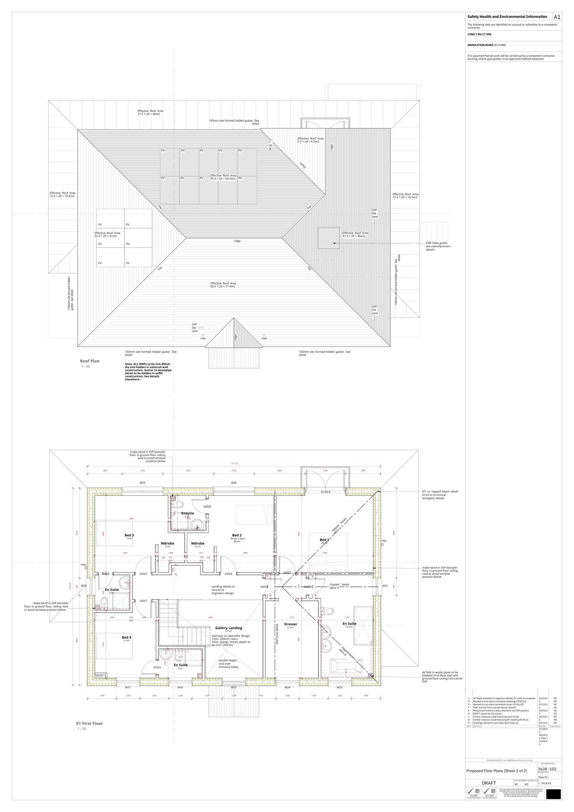
Charles Vickery completed an ICF self build in Berkshire, blending modern features with traditional Georgian styling. The three-storey house appears as two-storeys from the front due to the sloping plot.

Could you tell us any interesting facts or remarkable features about your project?

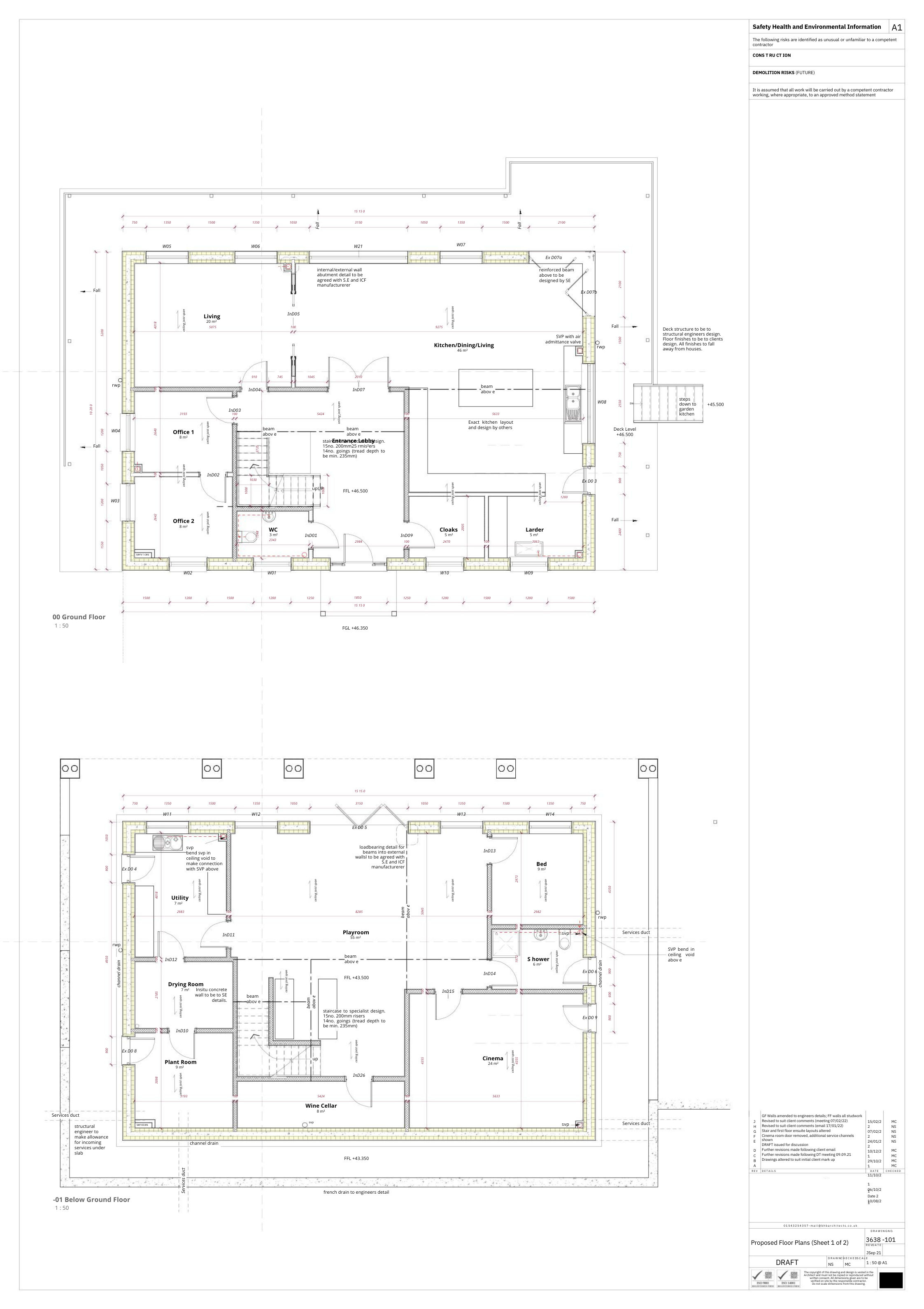
The house is 3 storeys but appears as 2 storeys from the front because of the sloping plot and the 4 metre high retaining wall which runs along the front and both sides of the house. The entire middle floor of the house has a wraparound terrace / balcony made of (non-combustible) porcelain decking boards (Exadeck) in order to satisfy fire regulations.

The electricity supply for the house has been upgraded to 3 phase as the house is solely run on electricity – there is no mains gas. There are 24 (in-roof) solar panels on the south-east and south-west facing roof elevations which produce over 60 kwh (units) of electricity on a good day and means that the house is capable of being self-sufficient between March and October.


Charles's Experience at the National Self Build & Renovation Centre

How many times have you visited The National Self Build and Renovation Centre before?

About ten times

What would you say is the most helpful feature or resource at the NSBRC?

The courses & workshops. I attended many courses both at the Centre and online during the research period of our project and they were instrumental in determining the direction of the project.

Did you use any exhibitors at the NSBRC? If so, who?

Jackon (ICF), Jigsaw (infrared), Halcyan (water conditioner), Norrsken (triple glazed windows & doors) and Mixergy (hot water tank).

What did you enjoy most about your visit to the NSBRC?

Being able to see and touch so many products and easily being able to obtain information.

Would you recommend the NSBRC to a friend, and if so, what aspects of the Centre would you recommend and why?

Yes, 100%, particularly the courses and workshops.

Plans & drawings

Demolition and Groundworks

Construction

Technology

Finished Interior

Finished Exterior

Charles used a timelapse camera to record progress during the project, creating a 30 second snapshot of each day on site. A selection of the videos can be viewed by clicking here.

Information published in April 2024.

Charles is a self build consultant, having project managed his own self build, and is now combining that experience with his technical legal skills to help other self builders fulfil their ambitions. If you would like to discuss your project with Charles, he can be contacted on 07790 006770 or selfbuildmentor@gmail.com


You can also view Charles' full 'Case Study: Live!' interview with Harvey below (recorded in April 2024):

Charles' Self Build Experience

What first inspired you to undertake project – what did you hope to achieve?

I’ve wanted to do a new build project for many years and so this was the realisation of that ambition.

1

What was the cost & size of the land?

£910,000; 1 acre. There was a 1960s bungalow on the plot when we bought it.

2

How did you find the land - do you have any tips for others currently searching for a plot?

We bought an existing property (bungalow) on the open market.

3

Did you have any issues getting your planning permission granted or with building control? If so – why was this?

No particular issues getting planning permission for the house but mainly because we used a planning consultant who worked with us on a two-pronged strategy utilising our permitted development rights.

4

Why did you choose your method of construction?

There are a few elements of the house (particularly the structurally open corner window) that directed us towards the strength of ICF but I also liked the simplicity and speed of construction.

5

Did you use a project manager, or did you choose to self project manage?

Self project managed. I was on site every day and brought in over 20 different contractors over the course of the build.

6

What was your budget and were you able to stick to it?

We didn’t have a fixed budget but we wanted to make sure that we spent less overall (plot cost plus build costs and associated costs) than the end value of the property. The property has been valued as being worth £500k more than our total costs. This is our family home for hopefully the next 15-20 years but selling and downsizing (to perhaps another self build…) is part of our retirement plan.

7

Did you reclaim the VAT, and if so, how much were you able to reclaim?

We haven’t reclaimed the VAT yet as we have only just received our building regs completion certificate but we have approx. £15k to reclaim.

8

What aspects of the process did you find stressful – and do you have any tips on how to avoid the pitfalls you encountered?

It was tough trying to keep the costs under control whilst building during the extraordinary price hikes created by Covid / the war in Ukraine. We made a few changes to the design to save money but this ultimately caused as many issues as it solved. My advice would be to stick to the design if at all possible.

9

What did you find most enjoyable about working on your project?

I’ve loved being on site and being very hands-on and involved in all of the decisions. I now have some great relationships with the contractors who have worked on the project.

10

What is one of your favourite features about your project?

We have smart staircase lighting on the staircase going down to our lower ground floor – the LED strip under the lip of each step comes on in turn as you walk up and down the stairs. It is the first thing commented on by everyone who visits the house.

11

How did you tailor your home to suit your lifestyle?

I designed the practical layout of the house and then employed an architectural technician to draw up the technical working drawings. We were very keen to make sure that we would use every part of every room and not have any wasted space. We have 2 office rooms as we both work from home a lot of the time and a whole floor of fun space for us to enjoy occasions with family and friends.

12

Is there a possibility you would ever undertake another project in the future?

Definitely. In fact we have talked about the fact that we would find it very difficult to ever live in a house designed by anyone else..

13

If so, is there anything you would do differently?

The majority of the project has gone to plan but there are inevitably a number of things that we would do slightly differently if we did the project again.

14

What would your top tip be for other NSBRC Visitors about to embark on their first self build or home improvement journey?

If at all possible, be on site every day. Not necessarily for all of the day but at least part of it. All of our contractors have been brilliant but no one is ever going to pay as much attention to your build as you are yourself. There were at least 5 times during the build that I noticed things that were wrong that would never have been picked up by the contractor until it was too late.

15